
工程快報——西安高新一中改擴建暨社會共享停車場項目
項目簡介
西安高新一中改擴建暨社會共享停車場項目位于高新區唐延路與科技三路東北角,總投資額 7.1 億元,規劃總建筑面積 8.65 萬平方米。項目建成后,全面提升學校硬件環境和教育品質,助力高新區爭創一流教育強區。
西安高新一中改擴建暨社會共享停車場項目作為“幸福高新”建設重點項目之一,將學校教室由 32 間增加至 52 間,各類部室增加至 30 間,操場環形跑道升級至 300 米;新建可以容納 700 人的報告廳,室內籃球場、羽毛球場等場館,地下車庫機動車停車位 450 個。項目將錯時對市民開放停車位、室內體育場館、操場,緩解城市基礎設施壓力。
01項目難點
01 深化設計難點
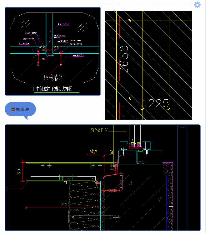
本工程外門窗系統多,主要系統有十多種;型材規格種類多,其中玻璃板塊種類為5種,金屬板種類為4種;同時本項目門窗分格大,裝飾線條設置較多。要保證不同規格玻璃、裝飾線條在同一完成面上對幕墻門窗構造提出了較高要求。
通過采用 BIM模型對收口進行深化設計,對窗套收口進行模擬拼接。施工過程合理安排材料下單規格及尺寸,安排施工順序。同時根據模型進行方案優化,節點改進,從而提高施工質量和觀感質量,在施工前對工人進行可視化技術交底。
02 加工制作難點

門窗系統;型材種類多,門窗型材80多種,幕墻型材20余種。不同材料的拼裝、構造是門窗加工制造的難點。
用二維圖紙輔以三維視圖,使技術人員與施工人員的技術交底工作形象具體,避免理解歧義。
03 工程重點難點
門窗與主體結構連接、交界部位防水處理、裝飾線條、大板塊蜂窩鋁板的平整度,這些工程的重點、難點,我們技術人員和現場施工人員通過不斷溝通、探討,最終拿出最優解決方案。
02 項目進程

因學校項目不同于其它項目,該項目不僅工期要求緊,質量要求更高,孩子們學習生活的地方,質量上容不得半點馬虎,項目進場后,工程部迅速做出反應,制定了合理的工作安排,力保項目如期交付。
自進場以來,項目組員工全身心地投入,按照各自的分工有條不紊地開展工作,夏日酷暑,他們主動放棄周末休息,發揚“五加二”、“白加黑”的苦干、實干精神,自我施壓。施工現場,幾百名工人和項目管理人員頂著烈日,堅守在工地上,不懼高溫搶工期,揮汗如雨抓進度,晝夜奮戰,全力推進項目建設。為保證項目施工進度,項目部建立周督查制度,嚴格落實管理人員到崗制度,優化施工組織,細化施工計劃,快速協調現場各工序有效銜接,并增加機械和施工班組,只為能讓孩子們早日搬進寬敞明亮的新教室。
項目人員日夜搶工
項目部及相關負責人定期開會溝通,跟進工程進度
1、實施監督各級進度計劃(周、月、季計劃)的執行情況,定期、嚴格審查施工質量,保質保量保時效的完成任務;
2、加強與甲方、監理單位、設計單位的溝通與協調,出現問題快速解決,避免造成工期延誤;
作為“翔遠人”項目組員工們面對壓力勇往直前、主動承擔、團結協作、永不服輸的翔遠精神讓我們交出了一份滿意答卷,每一次機遇和挑戰對我們來說都是一次升華和蛻變,感謝這些在壓力面前從不低頭、勇往直前的小伙伴們,你們的拼搏奉獻精神鑄就了我們翔遠公司的企業靈魂,希望這種拼搏精神一直伴隨我們,向我們奮戰在項目部一線的各位領導和員工致敬!
7月15日
項目迎來千余名師生參觀
共同領略校園的全新風貌
實景拍攝展示
我們翔遠全員統一思想,凝心聚力,抓嚴抓緊、抓實抓細各項工作,著力建設重點工程、民生工程、形象工程,以高標準工程展示公司實力、影響力。我們翔遠是一支業務過硬、能打硬仗的隊伍,全員發力,勠力同心、砥礪奮進,全力以赴,趕進度、抓質量、保安全,以“時不我待、只爭朝夕”的魄力,“沖鋒在前、永不放棄”的韌勁,完成每一項艱巨的任務,為我們的城市增添光彩。
瀏覽量:1392